Espace Rivière : penser l’expérience d’usage qui donnera forme aux espaces

Client: Arrondissement de RDP-PAT - 2016-2023

En collaboration avec: Équipe projet en arrondissement et à la Ville centre, Affleck de la Riva Architecte et Coarchitecture

Mandat

Penser un milieu de vie pour les citoyens, employés et organismes communautaires qui l'adopteront

Livrable

  • Énoncé de vision de l’expérience du futur lieu et des principes directeurs
  • Plan des usages et liste de critères décrivant l’expérience à viser
  • Organigramme des relations fonctionnelles entre les espaces et définitions des critères fonctionnels pour chaque espace
  • 3 typologies de bureaux administratifs pouvant assurer une polyvalence et une pérennité
  • (Analyse de l’expérience citoyenne lors du comité technique
  • Peaufinement des plans de blocage avec les concepteurs lauréats

Élaboration de la vision expérientielle du lieu

Grâce à une série d’enquêtes et d’ateliers de codesign menés auprès de citoyens, d’organismes communautaires, d’employés et d’élus, nous avons fait émerger un énoncé de vision inspirant ainsi que 9 principes directeurs utilisés tout au long projet. De cette consultation sont également ressorties une planification et une caractérisation des usages nécessaires pour matérialiser l’expérience globale du lieu tel que rêvé avec les usagers.

Rédaction de l'énoncé de vision pour l'expérience du lieu

Rédaction de 9 principes directeurs ayant agi comme référence tout au long du projet

Plan des usages permettant de visualiser les fonctions et l'expérience à viser

Enquête terrain avec une école primaire qui se rend à la Maison de la culture pour voir une pièce de théâtre

Définition de critères humain visant à alimenter le PFT

Nous avons rencontré chaque organisme individuellement afin de bien comprendre leur besoin et ainsi créer des milieux de vie pertinents pour eux. Par la suite, nous avons défini les organigrammes qui mettent en évidence les liens fonctionnels entre chaque fonction d’un pôle et les critères de l'expérience humaine qui ont permis de nourrir le PFT. Trois typologies de bureaux administratifs ont également été développées.

Session de travail individuel avec chaque organisme communautaire concerné par le projet afin de préciser leurs besoins en locaux d'activités et administratif

Illustrations des fonctions pressenties dans le lieu : outil permettant aux organismes de se projeter concrètement dans l'usage des espaces

Session de travail interne visant le clustering des fonctionnalités prévues à Espace Rivière dans le but de concevoir une expérience fluide

Session de travail avec l'équipe projet visant à valider le concept de pôle thématique

Schématisation de la proposition de concept par pôles thématiques

Organigramme démontrant les liens fonctionnels entre les différentes fonctions d'un pôle thématique

Typologies d'espace de bureaux développées pour répondre aux besoins de organsimes de façon pérenne

Évaluation de l’expérience citoyenne :
comité technique concours Espace Rivière

Puisque Meilleur Monde détient une compréhension exhaustive de la vision et des fonctionnalités pensées pour les usagers, nous avons été invités à siéger au comité technique lors de l’évaluation des propositions des finalistes du concours Espace Rivière. Notre mandat consistait spécifiquement à évaluer l’expérience citoyenne, incluant celle des organismes communautaires avec lesquels nous avions beaucoup travaillé au préalable.

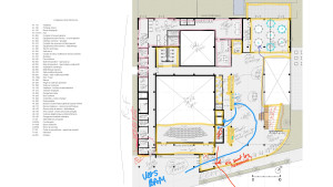
Optimisation des esquisses architecturales

Une fois l’équipe lauréate choisie lors du concours d’architecture, Meilleur Monde a été appelé à collaborer avec les concepteurs afin de peaufiner les esquisses architecturales. Puisque les architectes et les ingénieurs sont rapidement ensevelis sous une quantité impressionnante de contraintes techniques, notre rôle consistait à garder l’expérience des usagers en ligne de mire afin de converger vers un concept à la fois efficient et humain.

Un meilleur monde, un projet à la fois

Contactez-nous