Médiathèque : stimuler l'engagement des jeunes

Client: Médiathèque Nelly-Arcan - 2024

En collaboration avec: Lydia Lammari

Mandat

Proposer des aménagements pour le secteur jeunesse afin d'accroître la présence et l’attachement des jeunes envers la Médiathèque.

Livrable

  • Propositions d'aménagement
  • Plans et modélisations d'aménagement finaux

Immersion sur le terrain

Afin de nous imprégner du lieu et d’en comprendre les usages, nous avons mené un “sprint terrain” de 3 jours consécutifs sur les lieux. Nous y avons rencontré des usagers et discuté avec le personnel, afin de définir le paramètre du projet de façon sensible à leurs besoins.

Propositions d'aménagement

Deux propositions d'aménagement ont été développées et présentées. Afin de challenger les propositions et de faire un choix éclairé, nous les avons mis à l’épreuve de quelques citoyens et du personnel. À la lumière de ces discussions, un comité a choisi le concept final.

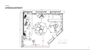
Plans et modélisations

Une fois le concept approuvé, nous avons réalisé les plans et modélisations finales et fait la sélection du mobilier. La Médiathèque étant soucieuse de prioriser les fournisseurs locaux, nous avons fourni une liste de fournisseurs pour la production du mobilier sur mesure.

Aménagements finaux

Un meilleur monde, un projet à la fois

Contactez-nous